Żuraw warsztatowy przyścienny TYP ZPM
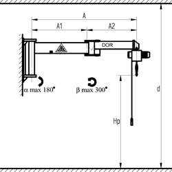
Żuraw przyścienny ZSM nazywany jest też manipulatorem. Dzięki zastosowaniu ramienia łamanego uzyskano możliwość łatwego dotarcia z transportowanym ładunkiem (np. narzędziem) w obszar pracy z ominięciem występujących na jego drodze przedmiotów. Rozwiązanie to pozwala również ulokować ładunek lub narzędzie wewnątrz maszyny, np. obrabiarki.




